Skip to main content Accessibility Policy

Buildings and facilities

River

Physical address:

640 Indian St.
Savannah, Georgia

Nestled in the west end of downtown with splendid views of the Savannah River and the historic district, River is a suite-style residence hall for continuing students. This fully furnished residence features 24-hour on-site security and support from SCADhome staff. 

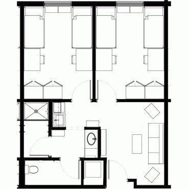
River offers suite-style living with accommodations for four students. Each suite has two double-occupancy bedrooms, one bathroom, a living room, and shared cabinets with a sink. The rooms include air conditioning, extra-long twin-size beds, wireless Internet access, a worktable, a chair, and a wardrobe unit with built-in hanging and drawer space for each resident.

ADA accessible, River features lounge spaces, elevator service, pay laundry machines, and an on-site market, Hatch. Cargo dining hall is located on the ground floor. Garage parking is available directly across the street.

This coeducational residence hall is available for transfer, graduate, and undergraduate students.

Housing features

  • Seventeen-story building
  • Coeducational
  • Occupancy: approximately 800

Room features

  • Suites with two double-occupancy rooms for four students 
  • Community cabinets with sink
  • Living room with couch, side chairs, coffee table, and entertainment stand for flat-screen TV
  • Air conditioning
  • Separate shower, toilet, and sink facilities in each suite
  • Extra-long, twin-size beds (36" x 80")
  • Desk, chair, and nightstand for each resident
  • Wardrobe with drawers for each resident
  • Wireless internet access

Residence features

  • Elevator service
  • On-site dining hall and market
  • Digital laundry room accepts digital payment methods, monitors the best time to find available machines, and sends alerts when your laundry is done.
  • On-site security
  • ADA accessibility
  • Garage parking available across the street with SCAD parking permit
  • Convenient to Fahm Hall, Graham Scott, Alexander Hall, Adler Hall, and Hamilton Hall

Housing fees